Projekt: Tåstorps Demenscentrum, Falköping

Bläddra/svep höger vänster, klicka/tryck för hela bilden (14 bilder)

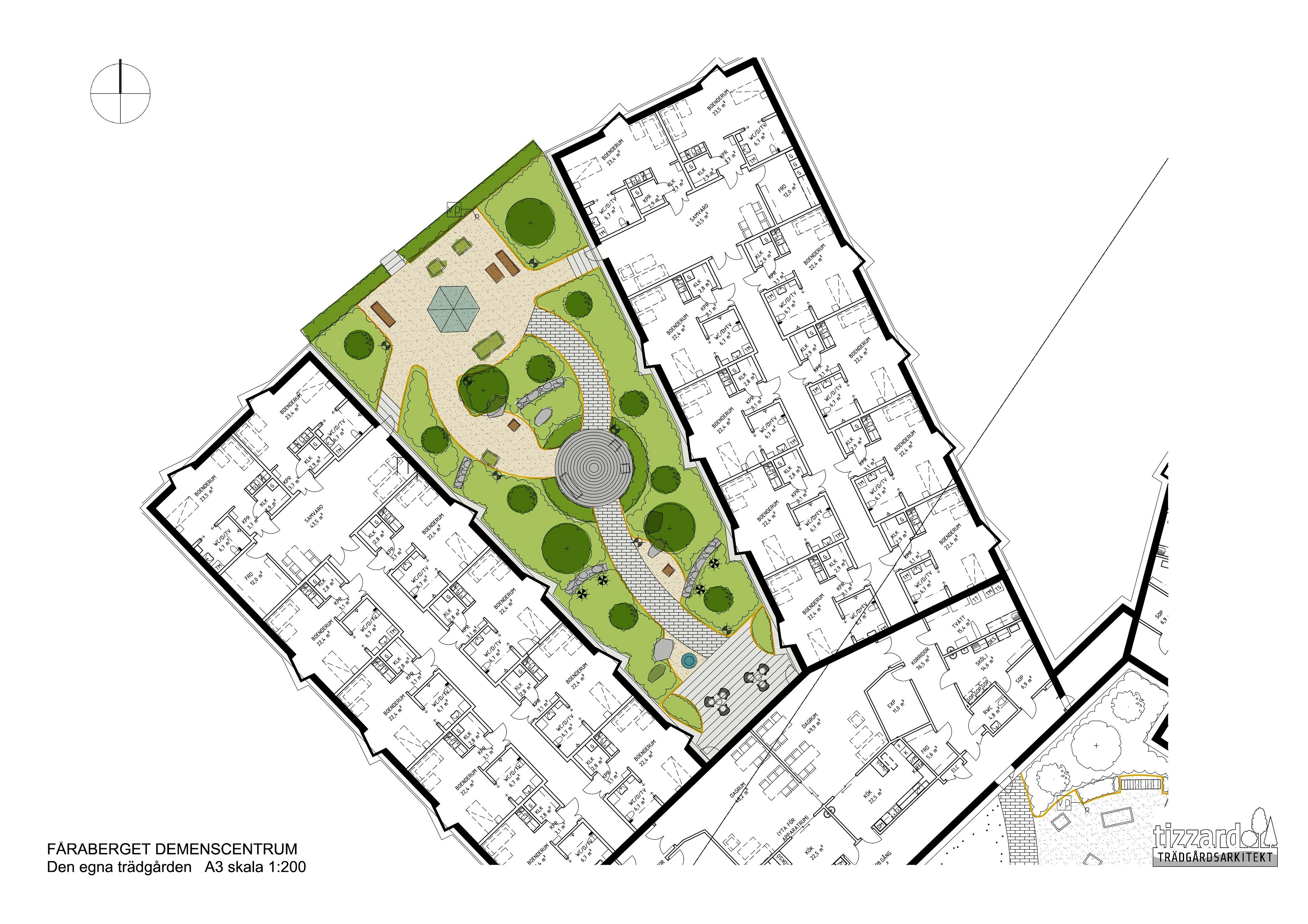
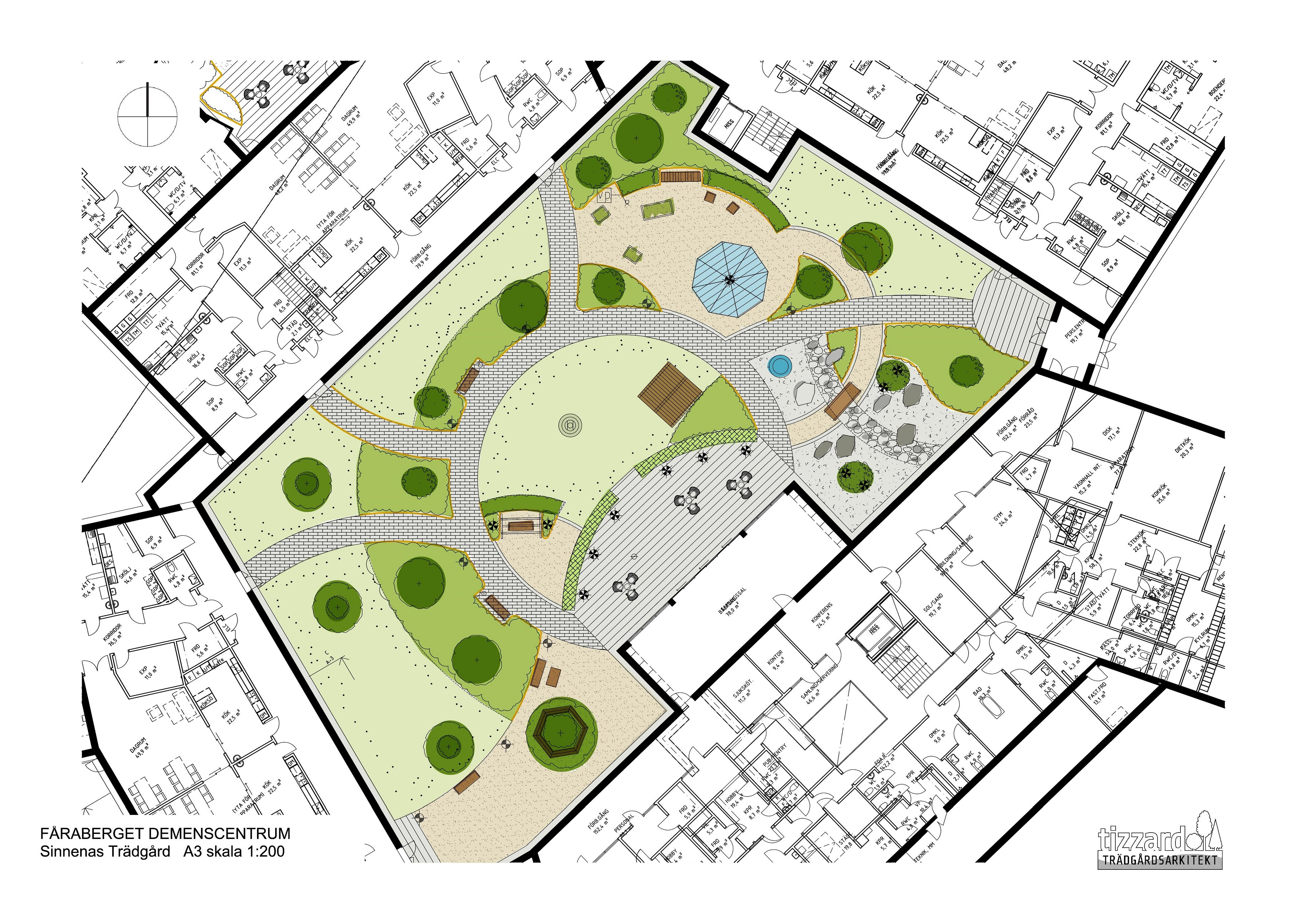
Nybyggnad av demensboende vid Fåraberget, Falköping

Projekt klart 2020

Beställare; Falköping Kommun

I samarbete med PE Arkitektur

Nerladdningsbara filer:

Här följer en eller flera nerladdningsbara filer. Beroende på din webbläsare så kan du titta på dem direkt i webbläsaren, eller högerklicka och ladda ner länkarna till din dator eller annan enhet för att titta på även offline.