Projekt: Kv Tyr, Skövde

Bläddra/svep höger vänster, klicka/tryck för hela bilden (20 bilder)

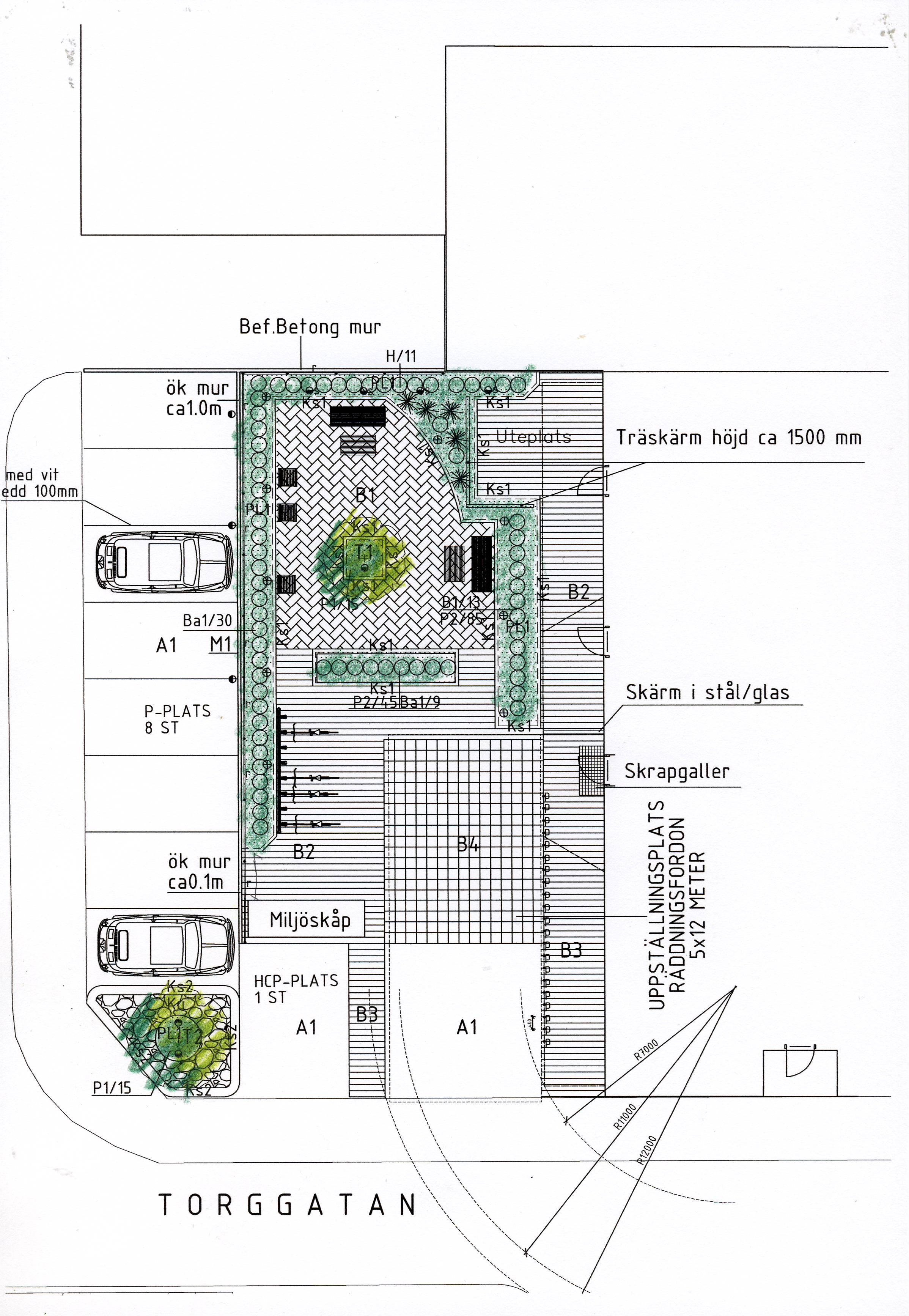
Gårdsdesign samt material och växtförslag ,som blir  förfrågningsunderlag.

I samarbete med ABAKO Arkitektkontor AB och NOLA

Beställare: Skövdebostäder

Projekt klar 2105

Nerladdningsbara filer:

Här följer en eller flera nerladdningsbara filer. Beroende på din webbläsare så kan du titta på dem direkt i webbläsaren, eller högerklicka och ladda ner länkarna till din dator eller annan enhet för att titta på även offline.